CASA K+M para Karen y Marcos
Historia del Proyecto: Cuando Karen y Marcos me contactaron, la planta baja de su casa ya estaba construida en obra negra. A partir de ese punto, el reto fue diseñar la planta alta respetando lo que ya existía, y revisar cuidadosamente la parte estructural.
El espacio de sala, comedor y cocina no contaba con trabes que permitieran soportar una segunda planta de forma segura, así que si realmente querían una planta alta —como era su deseo—, necesitábamos garantizar que esta no representara ningún riesgo para ellos. Por eso, buscamos la asesoría de un ingeniero civil para evaluar y reforzar la estructura. Aquí te muestro algunas fotos del estado actual de la planta baja en obra negra.
Te enseño algunas fotografías de la casa en el estado actual de obra negra en planta baja.
Matehuala, San Luis Potosí
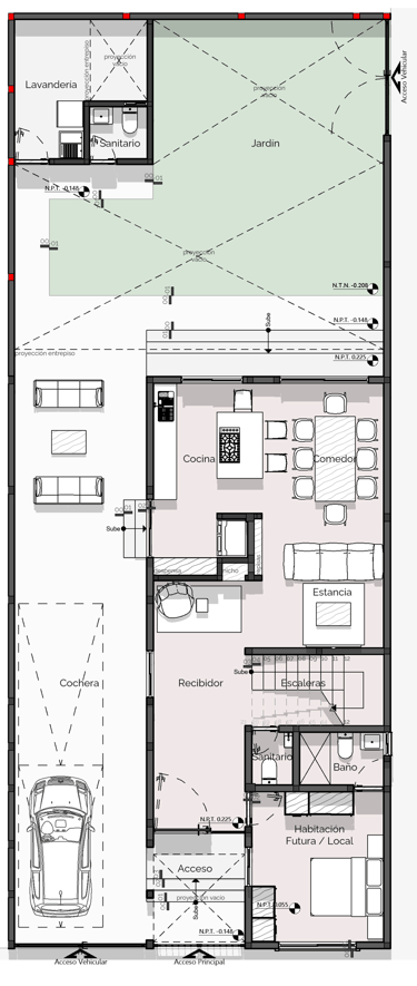
Diseño de la Casa: Como punto de partida, decidimos aprovechar al máximo los espacios que Karen y Marcos ya habían construido en planta baja, para no generarles gastos adicionales en demolición o modificación. Afortunadamente, la distribución original funcionaba relativamente bien, así que trabajamos a partir de ella.
El resultado es una casa con un vestíbulo amplio que conecta directamente con la escalera. En planta baja también hay una recámara que, de forma versátil, funcionará como local comercial. A partir de ahí, se desarrollan los espacios sociales: estancia, comedor y cocina. En esta zona sí hicimos ajustes importantes, como la colocación de nuevos muros y trabes estructurales que nos permiten soportar de forma segura la planta alta.
En el jardín trasero se ubicó la lavandería al fondo, junto con un medio baño pensado para reuniones familiares. La parte final de la cochera también puede usarse como extensión del área social cuando reciban visitas.
En la planta alta está la recámara de su hija, que cuenta con vestidor y un balcón al frente. Hay también una recámara de visitas, y ambas comparten un baño completo que tiene el lavabo separado, permitiendo que dos personas lo usen al mismo tiempo. Incluimos un sink, es decir, un espacio tipo clóset donde se almacenan artículos de limpieza y se puede tirar el agua sucia gracias a un pequeño desagüe.
Pensando en el almacenamiento, agregamos una bodega para guardar muebles o adornos de temporada —porque siempre hace falta espacio extra en casa—. Para la convivencia familiar, diseñamos una sala de TV y una terraza que, entre nosotros, cariñosamente llamamos roof garden.
Por último, la recámara principal cuenta con vestidor y baño propio. En lugar de tener el lavabo dentro del baño, lo colocamos por fuera, lo que nos permitió aprovechar ese espacio interior para instalar un clóset de blancos con artículos de limpieza e higiene para esta zona.





























