CASA F+Y para Francisca y Yony


Yony me encontró por Facebook en el verano de 2023, y fue increíblemente fácil que nos conectamos y pudimos platicar de su proyecto sin importar la distancia. Desde nuestra primera conversación, noté que él y su esposa, Francisca, tienen una visión clara de la casa en la que desean formar su familia. Querían un diseño que se ajustara a su economía y al espacio de su terreno, además de finales de la flexibilidad para construirla en fases, de modo que pudieran mudarse lo más pronto posible y luego agregar los acabados.
Uxpanapa, Veracruz


Los primeros pasos y el diseño
Cuando nos reunimos por videollamada, Yony y Francisca compartieron sus ideas y un boceto de cómo imaginaban su hogar. Este boceto tenía algunos problemas que podrían haber generado inconvenientes importantes, como un comedor estrecho y dos baños pequeños para sus futuros hijos. Además, al no considerar el clima cálido y húmedo de la región, podría haber resultado en problemas de comodidad y ventilación. Afortunadamente, ellos confiaron en mi orientación para hacer ajustes en el diseño y resolver estos detalles desde el inicio, además siempre me base en los gustos e imágenes de referencia que ellos me compartieron para el diseño de fachada y espacios, cero imposiciones de mi parte.




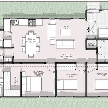
Casa funcional, económica y adaptable
El proyecto que desarrollamos es una casa de un solo nivel, construida con muros de carga y con un techo de galvateja y madera, como se construye tradicionalmente en la zona. Para facilitarles el proceso y bajar costos, usamos ventanas de tamaño estándar y propusimos acabados aparentes en las primeras fases de construcción. Esto les permitirá tener un hogar habitable rápidamente y luego agregar los acabados finales conforme su presupuesto lo permita. El diseño de la casa incluye un espacio abierto y compartido para sala, comedor y cocina, y un porche con arcos que refleja el estilo de las casas de la región, ideal para convivencias familiares. La recamara principal tiene vestidor y baño completo con tina, parte de la casa de los sueños de la familia.
Casa por fases de construcción conforme crezca la familia
Una de las ventajas de cómo fue que diseñamos la casa, es que puede construirse por fases ajustándonos al presupuesto familiar en distintos momentos y también al crecimiento de la familia. Ellos de momento no tienen hijos, por lo que pueden solo construir la recamara principal con el vestidor y baño completo, a modo de un pequeño departamento. La siguiente etapa seria el área abierta de cocina, sala, comedor con baño y lavandería. Y la siguiente dependerá de si ya son padres y necesitan una nueva recamara o construir el porche, mini gimnasio y bodega. La recamara 2 puede ser la ultima en construirse cuando venga el segundo hijo.












Evolución del proyecto y proyección a futuro
Un año después de nuestro primer contacto, Yony me volvió a buscar para ayudarlos con el diseño de las instalaciones hidrosanitarias, ya que ahora tiene un mejor trabajo y planea iniciar la construcción. Es inspirador ver cómo, poco a poco, se están dando las condiciones para que Francisca y Yony se acerquen cada vez más a vivir en su propia casa.

