CASA R+S+S para Rocío, Samuel y su sobrina
Historia del Proyecto: Esta casa es la primera que me piden diseñar en otro país, aunque vecino de México. Samuel me contacto por redes sociales y me conto la situación en la que se encontraban. Resulta que ya habían trabajado antes con otro arquitecto que les ayudo con el diseño de su casa pero no les entrego todo lo que acordaron, jamás tuvo una platica con Rocío, esposa de Samuel, para saber cómo es que ella se imaginaba su casa, porque no solo se trata de escuchar a Samuel, aquí cuentan todos los integrantes de la familia, que de momento son ellos dos y su pequeña sobrina. Nunca revisaron el proyecto en tercera dimensión y por los planos que me enseñaron, pienso que ni siquiera hubo un diseño real de la fachada y ya sospechaban que esto no era lo que la familia pago y menos un trabajo profesional.
Cuando me cuentan esto, comprendo la situación de poca confianza con la que se acercaron conmigo, pero también lo vi como una gran oportunidad de entregarles un proyecto muy bonito, funcional y que logrará espacios increíbles con las condiciones del terreno bien particulares, de 5 metros de ancho por 25 metros de largo. Donde nos preocupaba la iluminación y ventilación de los espacios.
Guatemala, Guatemala
Diseño de la Casa: Te muestro entonces la solución final de las dos plantas de la casa, donde podrás notar que las resolvimos a partir de dos patios interiores que nos ayudan a ventilar e iluminar de forma natural, y una cochera (o parqueo, como le llaman en Guatemala) que también aporta a la iluminación y ventilación.

















En la estancia, tenemos un ventanal que da a la cochera para poderlo abrir en momento de fiestas familiares para ampliar el espacio. Este espacio colinda con el primer jardín interior que tiene las escaleras de un lado que nos llevan a la segunda planta y en el otro lado, un pasillo que nos conecta con la cocina comedor que comparten espacio debido a las dimensiones del terreno, y aquí tenemos dos opciones de acomodo, como lo ves en la imagen con la mesa de forma independiente y también con una mesa en tipo barra desayunadora como podrás ver en los renders.
Aquí tenemos el patio de tendido, donde desde la cocina puedes revisar si tienes ropa tendida en caso de que empiece a llover, además de que nos sirve para ventilar el baño completo de la habitación 1, que será utilizada como habitación principal cuando la pareja viva la vejez, por eso la puerta del baño esta pensada para silla de ruedas. Aquí encontramos el segundo patio interior, que nos da una ambientación muy bonita y de relajación en estos espacios de la casa, aparte de ventilar e iluminar.
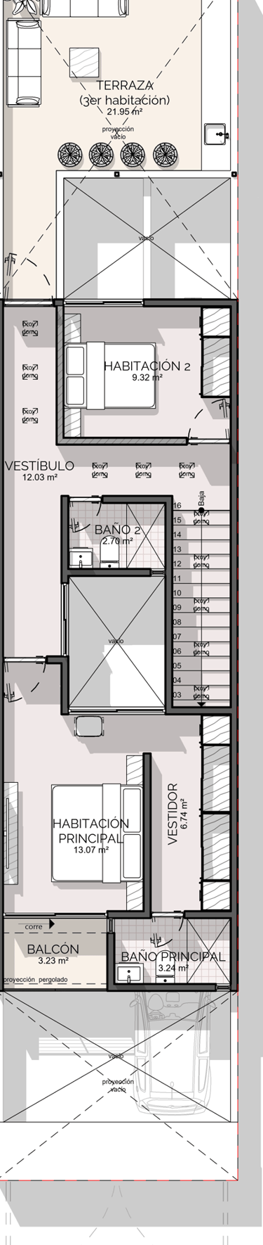
Debajo de las escaleras, en la parte más alta, tenemos un medio baño y bodega, para aprovechar bien todos los espacios.
Al subir por las escaleras, vemos la habitación 2 que será de muros de tablaroca, porque la intención es que en un futuro pueda ser una sala de tv y en donde tenemos ahorita la terraza, otra habitación futura igual a la de abajo. Esto es lo bonito de esta casa, que tiene esa flexibilidad de poder ajustar su diseño acorde a lo que suceda con el crecimiento de la familia en un futuro. La habitación principal tiene vestidor y baño propio, más un balcón que nos da a la fachada.
Ahora te presento un video que resume la explicación de la casa y también los renders que explican mejor este proyecto.

Agradecimientos: Me siento muy, muy afortunada por haber tenido la oportunidad de poder ayudar a la familia de Rocío y Samuel con el diseño de su casa, de que ellos lograron por fin la casa que tenían en mente, además de que juntos combatimos la idea que a veces se tiene de que el trabajar con un arquitecto o arquitecta es hacer de lado los gustos de la familia porque el arquitecto buscara imponerse lo más posible. Nuestro trabajo juntos fue muy bonito, parecido a jugar videojuegos gracias a las herramientas que utilizo para enseñarles el proyecto en tiempo real. Además son una pareja super linda y amorosa, espero con muchas ansias el momento en el que me compartan las primeras fotos de la construcción y saben que estaré aquí para ustedes si de nuevo necesitan mi apoyo.
Les comparto lo que ellos opinaron de nuestro trabajo juntos y nuevamente...
Mil gracias chicos!


ACTUALIZACIÓN: Les comparto las imagenes que me han mandado de cómo va la obra!







