CASA A+I para Abigail e Ismael
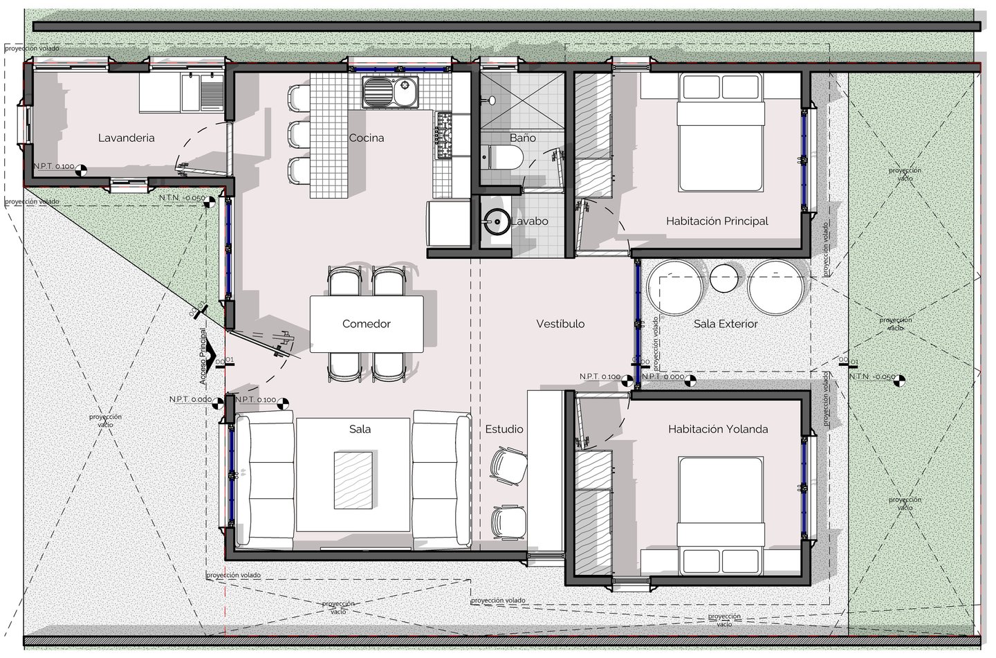
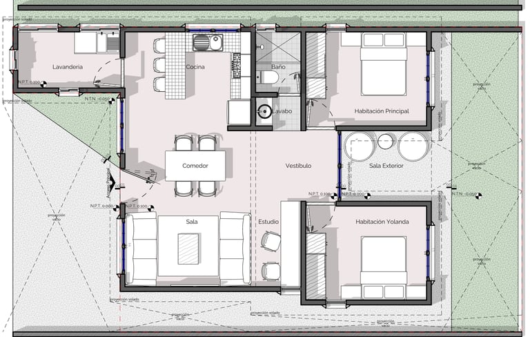
Historia del Proyecto: Te comparto este proyecto de uno de mis clientes en Oaxaca, el terreno es irregular, ya que es parte de un terreno más grande que se comparte con otros familiares y por eso no tenemos área de estacionamiento ni contacto directo con la calle. También los familiares nos pedían que respetáramos ciertas distancias en el pasillo sur, por eso esos muros no se ubican sobre un mismo eje.
La familia se compone de un matrimonio joven sin hijos y de la mamá de Ismael.
Desde un inicio pensamos la casa con tres recamaras y dos baños completos, sin embargo, conforme íbamos avanzando, la casa se fue simplificando y terminamos con dos recamaras del mismo tamaño y un solo baño completo con el lavabo afuera para que dos personas puedan usar el espacio al mismo tiempo.
La lavandería se ubica en la parte irregular del terreno, a lado de la cocina donde actualmente el terreno tiene instalaciones hidrosanitarias, por lo que la cocina y el baño se ubican en el mismo lado de la casa para que todas las instalaciones se ubiquen solo en ese lado.
El estilo de la casa es completamente al gusto de mis clientes (una combinación entre rustico y campestre), las recamaras están colocadas en la parte de atrás del terreno para poder tener la vista a las montañas de la región.
Pinotepa de Don Juan, Oaxaca
Diseño de la Casa: Te muestro entonces la solución final de las dos plantas de la casa, donde podrás notar que las resolvimos a partir de dos patios interiores que nos ayudan a ventilar e iluminar de forma natural, y una cochera (o parqueo, como le llaman en Guatemala) que también aporta a la iluminación y ventilación.








Ahora te presento el video de la casa y también los renders que explican mejor este proyecto.




